Projets urbains réalisés en tant que chef de projet chez ANMA – Agence Nicolas Michelin & Associés
- Ecoquartier – Chine
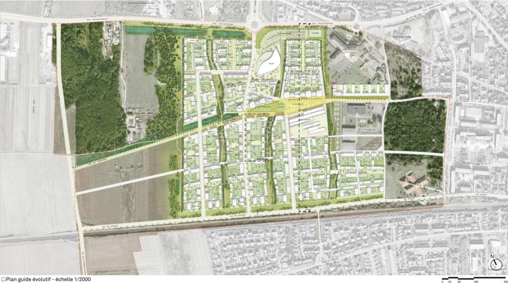
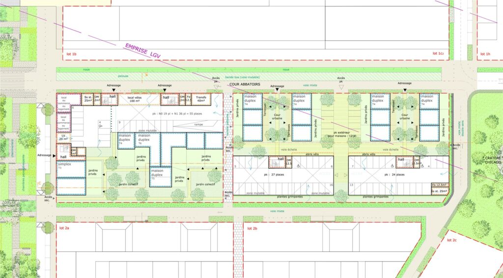
- Ecoquartier-des-Maraichers – Dijon
- Les Coteaux – Dijon
- Vauban-Neppert – Mulhouse
- Porte de la Chapelle
- Herblay
Projets urbains réalisés en tant que chef de projet chez ANMA – Agence Nicolas Michelin & Associés